역삼역 도보 5분거리 / 사무실 공유 / 단독 룸 / 최대 10명 수용 가능 / 공동 회의실有
페이지 정보

작성자 에이치에스앤케이
- 보증금
- 없음||만원
- 월 비용
- 170000|협의가능|만원
- 지역
- 건물명
- 연락처
- 010-2703-0224
- 주차장
- 02||| (5|3|만원)
- 작성일
- 20-05-11 15:10
본문
안녕하세요.
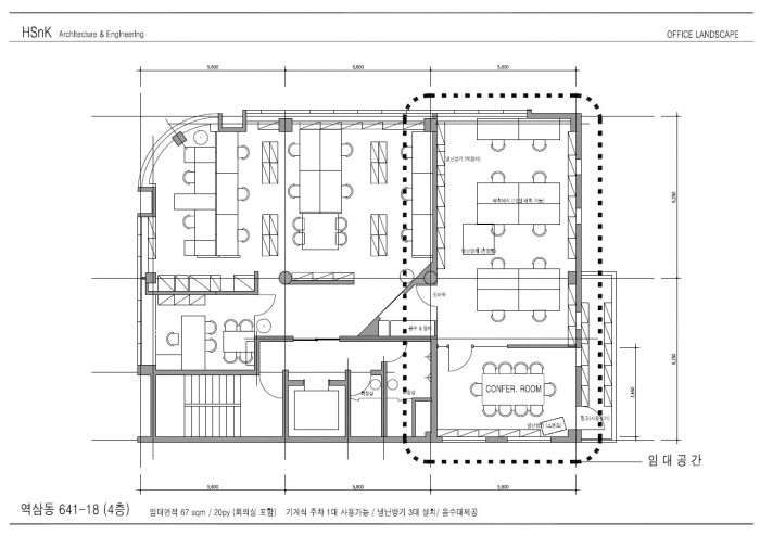
역삼역에서 도보 5분거리에 있는 사무실에서 함께 사무실을 공유하실 분을 찾습니다.
단독룸이며 평수는 20평입니다. 탕비실,회의실 공용 사용 가능합니다.
월세는 200만원이며 최대 10명까지 수용 가능한 평수입니다. 아래 도면 참조해주세요.
주차장은 기계식이며 1대 가능합니다.
건축설계 및 엔지니어링업체 우대합니다.
언제든지 문의 주시기 바랍니다.
댓글목록
등록된 댓글이 없습니다.

