종합건설사에서 건축사사무실 공유합니다
페이지 정보

작성자 근두운
- 보증금
- 없음||만원
- 월 비용
- 50|협의가능|만원
- 지역
- 건물명
- 연락처
- 010-5346-0873
- 주차장
- 02|523|8070| (2|2|만원)
- 작성일
- 20-11-20 05:41
본문
서로 소통하며 즐겁게 일을 하는 건설회사입니다.
이곳에서 저희와 함께 하면서 꿈을 이루어 나갈 분을 찾습니다.
1. 강남구청역 지하철5,9호선 2분 거리, 버스정류장 2분거리에 있습니다.
2. 저희는 종합건설회사로 디자인,건축/인테리어 설계자 분을 우선으로 모시고 싶습니다.
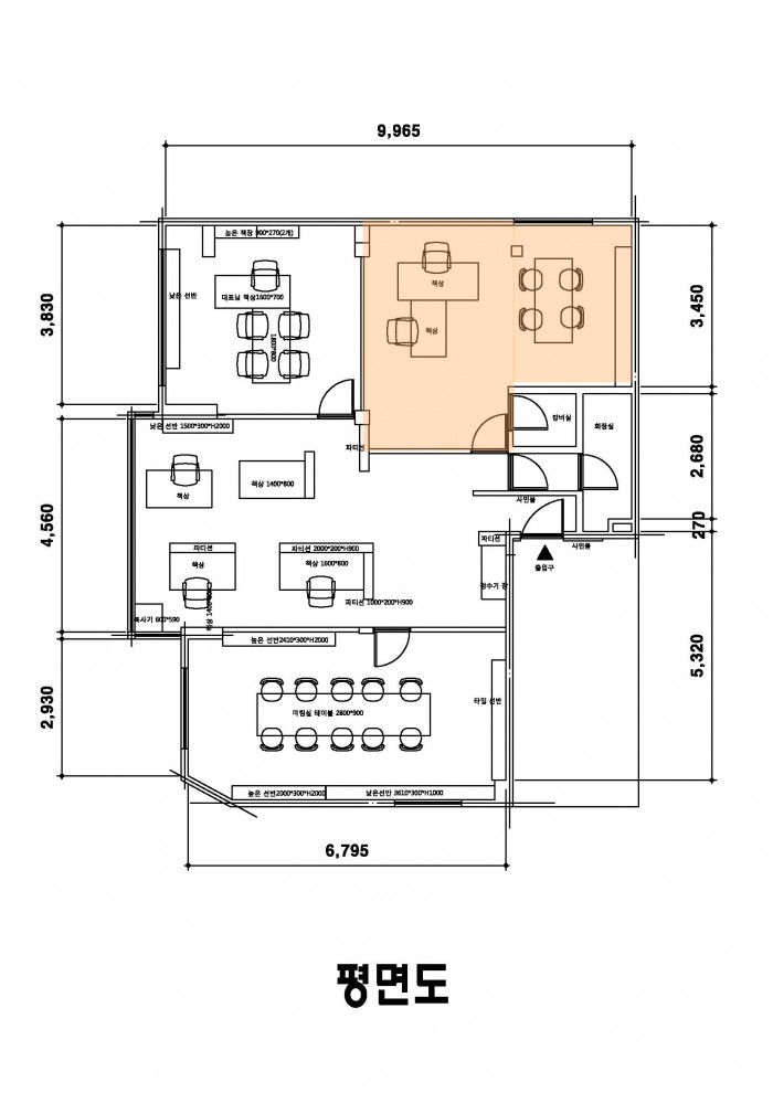
3. 10인 이상의 큰 회의실과 65인치 터치형 전자칠판 TV도 사용가능합니다.
현재는 오픈되어 있지만 차단막을 설치하여 분리된 독립공간으로 이용할 수 있습니다.
5. 업무에 필요한 컨설팅과, 여러가지 정보들을 공유하고 서로 윈윈하는 그런 관계를 유지하고자합니다.
다양한 마케팅으로 건축주의 문의가 많아서 설계계약 수주가 가능합니다.
6. 1인 공간은 월 50만원/4~5인 공간은 월 80~100만원으로 협의 후 결정합니다.
문의 : 02-523-8070
댓글목록
등록된 댓글이 없습니다.

