강남구청역 사무실 [ 건축사 공유사무실 / 오피스쉐어 ] 입주자 모집
페이지 정보

작성자 근두운
- 보증금
- 없음||만원
- 월 비용
- 50|협의가능|만원
- 지역
- 건물명
- 연락처
- 010-5346-0873
- 주차장
- 02|523|8070| (2|2|만원)
- 작성일
- 21-01-21 17:35
본문
강남구청역 사무실 [ 건축사 공유사무실 / 오피스쉐어 ] 입주자 모집
안녕하세요
씨앤종합건설은 면허를 갖춘 부족하지만 기업신용등급 BBB-로
부채율 제로의 건실한 종합건설회사입니다
지난 가을에 사무실을 확장 이전하게 되어 함께 사무실을 공유하실 건축사분을 찾습니다
(주)씨앤종합건설
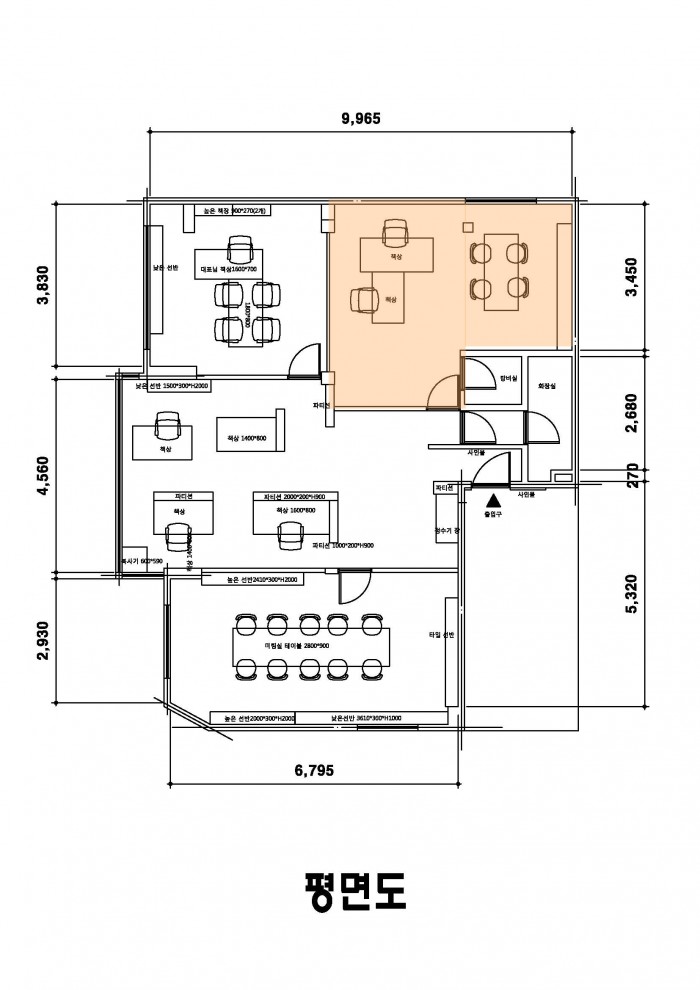
위 치 : 서울시 강남구 논현동 110-19 형민빌딩 2층
면 적 : 약 40평 정도
입주가능 : 즉시
임대료 : 1인 공간은 월 50만원, 5~6인 공간은 월 100만원으로 협의 후 결정합니다
1~2인 소규모로 일하는 건축사사무소
또는 5~-7인 건축사 사무소에 사무실을 임대합니다
현재 개방된 상태이지만 원하시면 개별 출입문을 설치하여 단독으로도 사용가능 합니다.
무엇보다 건축업무에 서로 윈윈할 수 있는 기회가 많을거라 생각됩니다.
10인 이상의 큰 회의실과 65인치 터치형 전자칠판 TV도 설치되어 있고
서로 공유하며 이용할 수 있습니다.
댓글목록
등록된 댓글이 없습니다.

